För att fira erbjuder vi 100 000 kr i rabatt på valfria tillval när ni väljer att bygga ett Stella 157. Kampanjen gäller endast vid tecknande av kontrakt avseende Stella 157 med valfri entreprenadform.
Villa Värmdö
Härliga terrasser och inbyggt garage ger karaktär åt denna moderna villa
Läckert tvåplanshus i modern stil med inbyggt garage och härliga terrasser. På överplan har barnen egen avdelning med allrum och badrum. Föräldrasovrummet med eget bad och klädkammare ligger avskilt från barnsovrummen. Från allrummet nås den stora balkongen.
Arkitekten tipsar
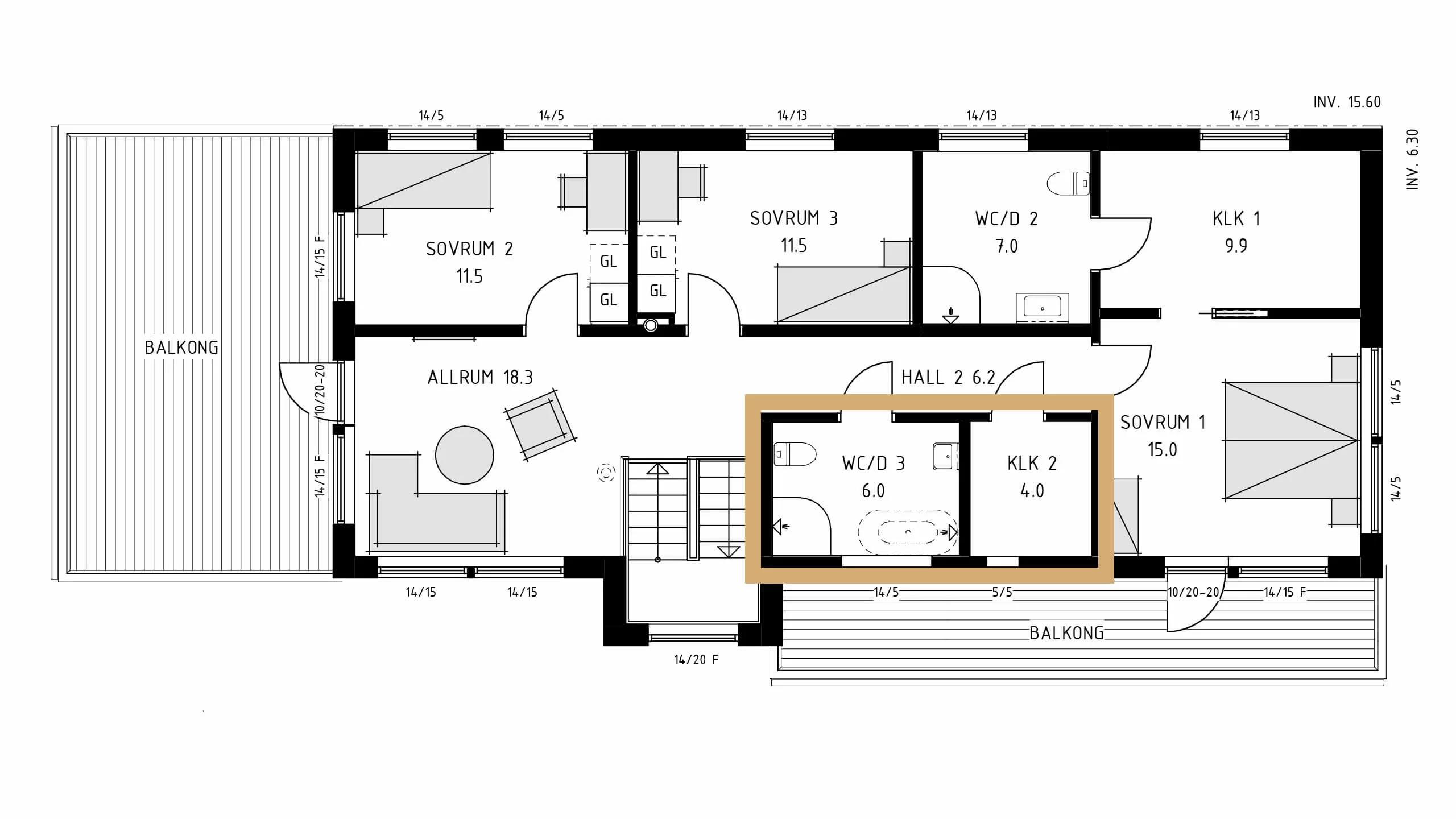
På överplan kan wc/dusch 3 och klädkammare 2 göras om till sovrum
Gör om klädkammare 2 på överplan till en bastu
Klädkammare 1 på överplan kan bli ett arbetsrum
Välj till glasräcke på balkongerna för att maximera utsikten
Huset blir fint med olika kombinationer av fasadmaterial
3D-illustrationer, foton och arkitektens tips innehåller tillval. På planritning i 2D visas tillval med streckad linje eller parenteser.
Fakta








Fakta
Arkitekten tipsar
Ett femte sovrum
Kan skapas på överplan
Plats för bastu
Välj bort en klädkammare
Hemmakontor
Välj bort en klädkammare
Maximera utsikten
Välj till glasräcke
Kombinera olika fasadmaterial
Skapa hus med attityd
Fler 2-planshus
Stella 150
Invändig area 150 kvm
Totalentreprenad från 3 512 200 kr
Materialleverans från 2 005 600 kr
Stella 170
Invändig area 170 kvm
Totalentreprenad från 3 802 700 kr
Materialleverans från 2 176 900 kr
Stella 190
Invändig area 190 kvm
Totalentreprenad från 4 147 900 kr
Materialleverans från 2 345 800 kr
Villa Danderyd
Invändig area 245 kvm
Villa Falkenberg
Invändig area 236 kvm
Villa Lidingö
Invändig area 222 kvm
Villa Malevik
Invändig area 203 kvm
Villa Mörtnäs
Invändig area 199 kvm
Villa Nacka
Invändig area 193 kvm
Villa Norrtälje
Invändig area 213 kvm
Villa Skultuna
Invändig area 227 kvm
Villa Svavelsö
Invändig area 194 kvm
Villa Söderhamn
Invändig area 166 kvm
Villa Tylösand
Invändig area 208 kvm
Villa Vindö
Invändig area 178 kvm
Villa Västerås
Invändig area 191 kvm
Villa Älvnäs
Invändig area 183 kvm
Möjligheternas husmodell
Våra husmodeller kan enkelt varieras efter behov och önskemål. Låt därför Trivselhus säljare guida er i valet av husmodell.
Börja med att titta på insidan i stället för att lockas av en snygg fasad. Hitta först rätt planlösning och applicera därefter en exteriör stil.
Huset och platsen mår alltid bäst av att komplettera varandra. Då blir hus och plats till ert hem.
Låt oss berätta mer om möjligheterna med Trivselhus
Skriv er fråga och fyll i era kontaktuppgifter så hör vi av oss!