Vi vill måla hela världen i härliga färger och erbjuder därför färgpaket till fasaden på köpet! Kampanjen gäller vid tecknande av kontrakt 1 februari – 30 juni 2026.
Villa Askim
Charmig villa med vackert rundade takkupor som släpper in ljus
Klassisk husform med charmiga detaljer, där vackra rundade takkupor släpper in ljus och bryter taket på ett fint sätt. Centralt placerat kök med tydlig rumskänsla. Rymligt vardagsrum med plats för matsalsbord. En trappa upp finns tre sovrum, badrum, allrum och två klädkammare.
Arkitekten tipsar
Använd den inbyggda trappan för förvaring eller återvinningskärl
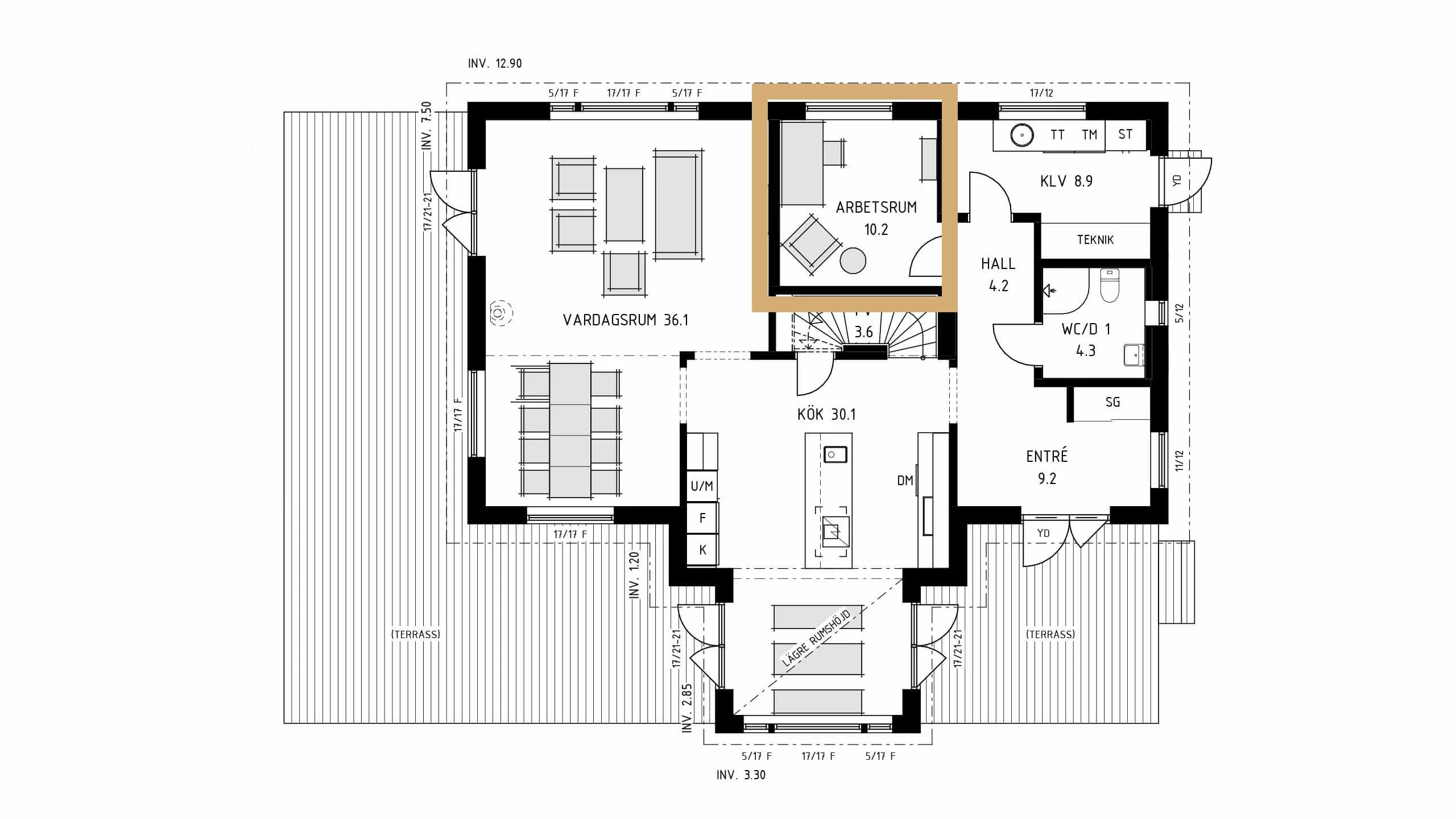
Arbetsrummet på entréplan kan bli ett extra sovrum
I hallen finns utrymme för platsbyggd inredning
Pärlspont på väggar ger en traditionell känsla
En braskamin mellan matplats och soffgrupp skapar en mysig känsla
Välj till blandad panel och exteriöra sekelskiftesdetaljer
3D-illustrationer, foton och arkitektens tips innehåller tillval. På planritning i 2D visas tillval med streckad linje eller parenteser. Notera att 1,5-planshus med tillval förhöjt väggliv kan klassas som 2-planshus vid bygglovsansökan.
Fakta








Fakta
Arkitekten tipsar
Inbyggd trappa
Ger bra förvaringsutrymme
Extra sovrum
I stället för arbetsrum
Traditionell känsla
Med pärlspont på väggar
Välj till en braskamin
Skapar mysig känsla
Välj till sekelskiftesdetaljer
Blandad panel och fina detaljer skapar stilen
Fler 1,5-planshus
Stella 98
Invändig area 98 +53 kvm
Totalentreprenad från 3 003 100 kr
Materialleverans från 1 683 000 kr
Stella 99
Invändig area 99+73 kvm
Totalentreprenad från 2 877 700 kr
Materialleverans från 1 574 400 kr
Villa Bråviken
Invändig area 177 kvm
Villa Fagersta
Invändig area 181 kvm
Villa Falsterbo
Invändig area 218 kvm
Villa Grebbestad
Invändig area 164 kvm
Villa Gällnö
Invändig area 204 kvm
Villa Hägersten
Invändig area 179 kvm
Villa Klövsjö
Invändig area 178 kvm
Villa Lysvik
Invändig area 176 kvm
Villa Mariefred
Invändig area 186 kvm
Villa Marieholm
Invändig area 189 kvm
Villa Simrishamn
Invändig area 171 kvm
Villa Storsjö
Invändig area 181 kvm
Villa Vadstena
Invändig area 170 kvm
Villa Åkarp
Invändig area 234 kvm
Villa Ålstorp
Invändig area 173 kvm
Möjligheternas husmodell
Våra husmodeller kan enkelt varieras efter behov och önskemål. Låt därför Trivselhus säljare guida er i valet av husmodell.
Börja med att titta på insidan i stället för att lockas av en snygg fasad. Hitta först rätt planlösning och applicera därefter en exteriör stil.
Huset och platsen mår alltid bäst av att komplettera varandra. Då blir hus och plats till ert hem.
Låt oss berätta mer om möjligheterna med Trivselhus
Skriv er fråga och fyll i era kontaktuppgifter så hör vi av oss!
