Frida Ramstedt, som driver inredningsbloggen Trendenser, tipsar om hur ni får till en sammanhållen inredning i ett hem genom att hålla en röd tråd och planera inredningen så att den håller ihop längs husets viktigaste siktlinjer.
Inredarnas hemliga knep 1
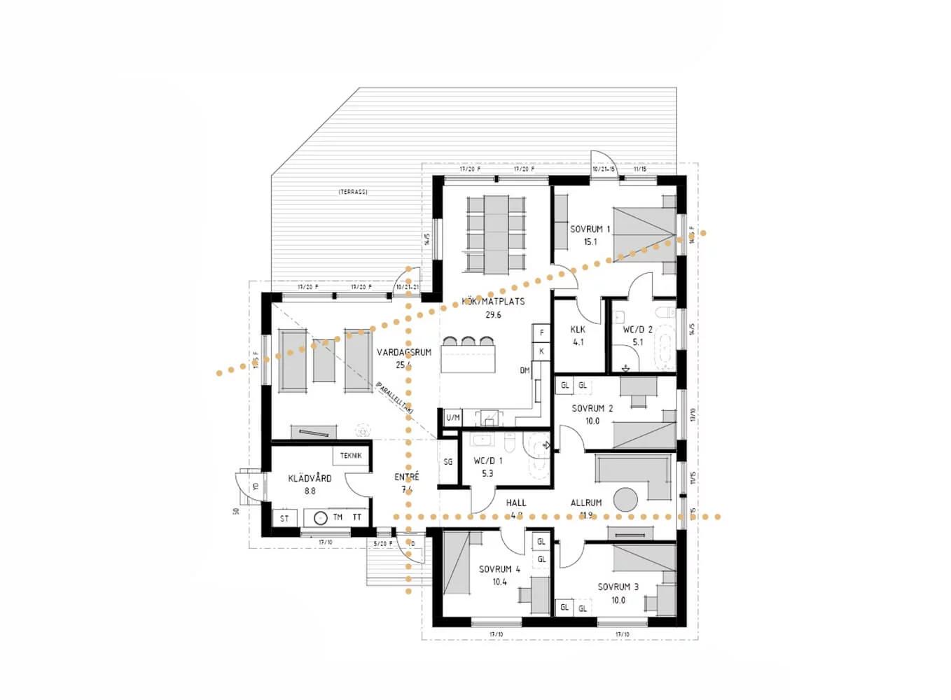
Tänk på siktlinjerna
När man sätter sig ner med ett nytt inredningsprojekt är siktlinjerna alltid en bra sak att börja med. Med det menas de platser i huset som har genomsikt, det vill säga de ställen och linjer i bostaden där ni kan se fler än ett rum i taget. Annars är det väldigt lätt att bli närsynt när man möblerar, att man bara ser det rum man för tillfället håller på med. Men, en viktig faktor för att lyckas få till en sammanhållen inredning i ett hem är att hålla en röd tråd och planera inredningen så att den håller ihop längs husets viktigaste siktlinjer.
I nya hus finns det ofta flera platser där man kan se fler än ett rum i taget. Utgå från dem där ni oftast kommer befinna er, exempelvis hallen, kök/matplats och vardagsrummet. Finns det färger eller material i angränsande rum att leka med? Eller kan någon möbelformgivare eller möbelleverantörs produkter få återkomma på fler ställen? Kanske finns det en utsikt som kan förstärkas eller användas för att färgsätta inredningen på insidan? Dra streck mellan dörröppningarna på en kopia av er planlösning så blir det tydligt vilka rum som bör hänga ihop inredningsmässigt för att skapa en harmonisk helhet.
Bästsäljande handbok
Frida Ramstedts bästsäljande handbok väger hela 1 kilo (!) och givits ut i 25 länder. Boken förklarar grundläggande inredningskunskaper, tumregler och tankeknep som alla kan ha glädje av, oavsett vad man gillar för typ av möbler eller stil. Råden i boken baseras även på antropometri, läran om människors kroppsmått.
Antropometri är en viktig informations- och inspirationskälla för arkitekter, möbelformgivare och inredare i deras arbete. Exempelvis räknar man på benlängd och armvidd för att kunna bedöma avstånd och utrymmesbehov, vilket är viktigt att ta hänsyn till när man inreder för att skapa ett bekvämt och fungerande hem.
Färgsättning
Hitta den röda tråden när ni inreder ert nya hem
Skapa ett personligt hem genom att matcha nytt och nött, perfekt och skavt
Bästa lösningarna för att skapa funktionell och personlig belysning
Låt oss berätta mer om möjligheterna med Trivselhus
Skriv er fråga och fyll i era kontaktuppgifter så hör vi av oss!
